Informazioni in evidenza

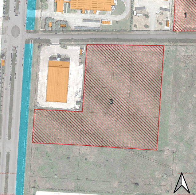
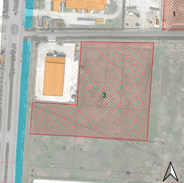
30.180 mqArea totale

33,00 %Indice di copertura massimo

30 mAltezza massima consentita

Posizione geografica

RegioneMolise
ProvinciaCampobasso
ComuneTermoli
MolisePosizione Molise

Caratteristiche del sito

Denominazione area industriale Consorzio per lo Sviluppo Industriale della Valle del Biferno
Area totale30.180 mq
Indice di copertura massimo33,00 %
Altezza massima consentita30,00 m
Modalità acquisizione Acquisto
Area in Zona Economica SpecialeSi
Area in Zona Logistica SemplificataNo
Area in Zona Franca DoganaleNo
Area di crisi industrialeSi

Infrastrutture e connessioni

Distanza dalla più vicina autostrada4,00 km
Distanza dalla più vicina stazione ferroviaria passeggeri8,00 km
Distanza dal più vicino porto industriale/commerciale8,00 km
Distanza dal più vicino aeroporto100,00 km
Distanza dal più vicino terminal ferroviario merci3,00 km

Galleria fotografica

Questo sito o gli strumenti da questo utilizzati si avvalgono di cookie necessari al funzionamento ed utili alle finalità illustrate nella cookie policy. Se vuoi saperne di più o negare il consenso ad alcuni cookie. Chiudendo questo banner o proseguendo con la navigazione acconsenti all'uso dei cookie.
Leggi la Policy Privacy